Сдается коммерческая, 60 кв.м., 2/2 эт
| Площадь, кв.м. | 60 |
| Арендная плата в месяц | 48 000 |
|---|---|
| Цена кв.м. в год | 9 600 |
| Коммунальные услуги включены | Нет |
| Тип здания | складской комплекс |
| Тип парковки | На улице |
| Вход cian (avito) | Общий со двора |
| Тип аренды | Прямая |
| Ремонт | Офисная |
| Планировка cian | Кабинетная |
| Планировка avito | Кабинетная |
| Отделка помещения коммерческая | Офисная |
| Залог (avito) | 1 месяц |
| Тип коммерческой | Офисное помещение |
| Этаж | 2 |
| Этажность | 2 |
| Класс здания | B |
| Населенный пункт | Курск |
|---|---|
| Район города | Центральный |
| Улица | улица Гайдара |
| Номер дома | 25К2 |
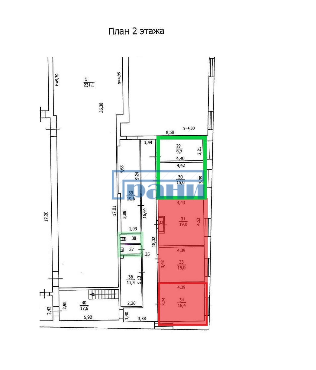
Предлагаем в аренду офисные помещения, площадью 60 кв.м, по адресу: Курская область, Курск, Центральный округ, улица Гайдара, д 25
ЛОКАЦИЯ:
Офисное здание расположено на закрытой территории производственно-складского комплекса;
Рядом крупная транспортная развязка города "пл. Добролюбова";
Остановки общественного транспорта - 350 м, (трамвай-50 м);
Удобная инфраструктура: Супермаркет "Перекресток", cтoловaя "Сытный дом", магaзин K&Б;
Рядом любимое место горожан для отдыха и релаксации "Утинный остров".
Характеристика объекта:
Офисный блок расположен на 2 этаже;
Кабинетная система (4 кабинета);
Большие окна, светлые помещения;
Высокий потолок 3 м;
Общий вход, предусмотрен запасной выход;
Круглосуточная физическая охрана;
Парковочные места для персонала и клиентов всегда в наличии;
Телефон, интернет;
Рядом на этаже, с/у;
Доступ круглосуточно.
Коммунальные услуги включены в аренду, электроэнергия по счетчику.

























