Продается коммерческая, 1433.7 кв.м., 1/3 эт
| Площадь, кв.м. | 1433.7 |
| Стоимость | 110 000 000 |
|---|---|
| Тип здания | Торговый центр |
| Тип парковки | На улице |
| Вход cian (avito) | Отдельный с улицы |
| Тип сделки авито коммерческая | Продажа |
| Ремонт | Офисная |
| Планировка cian | Открытая |
| Планировка avito | Открытая |
| Отделка помещения коммерческая | Офисная |
| Право собственности | Собственник |
| Тип коммерческой | Помещение свободного назначения |
| Этаж | 1 |
| Этажность | 3 |
| Класс здания | B |
| Населенный пункт | Курск |
|---|---|
| Район города | Центральный |
| Улица | улица Сосновская |
| Номер дома | 22 |
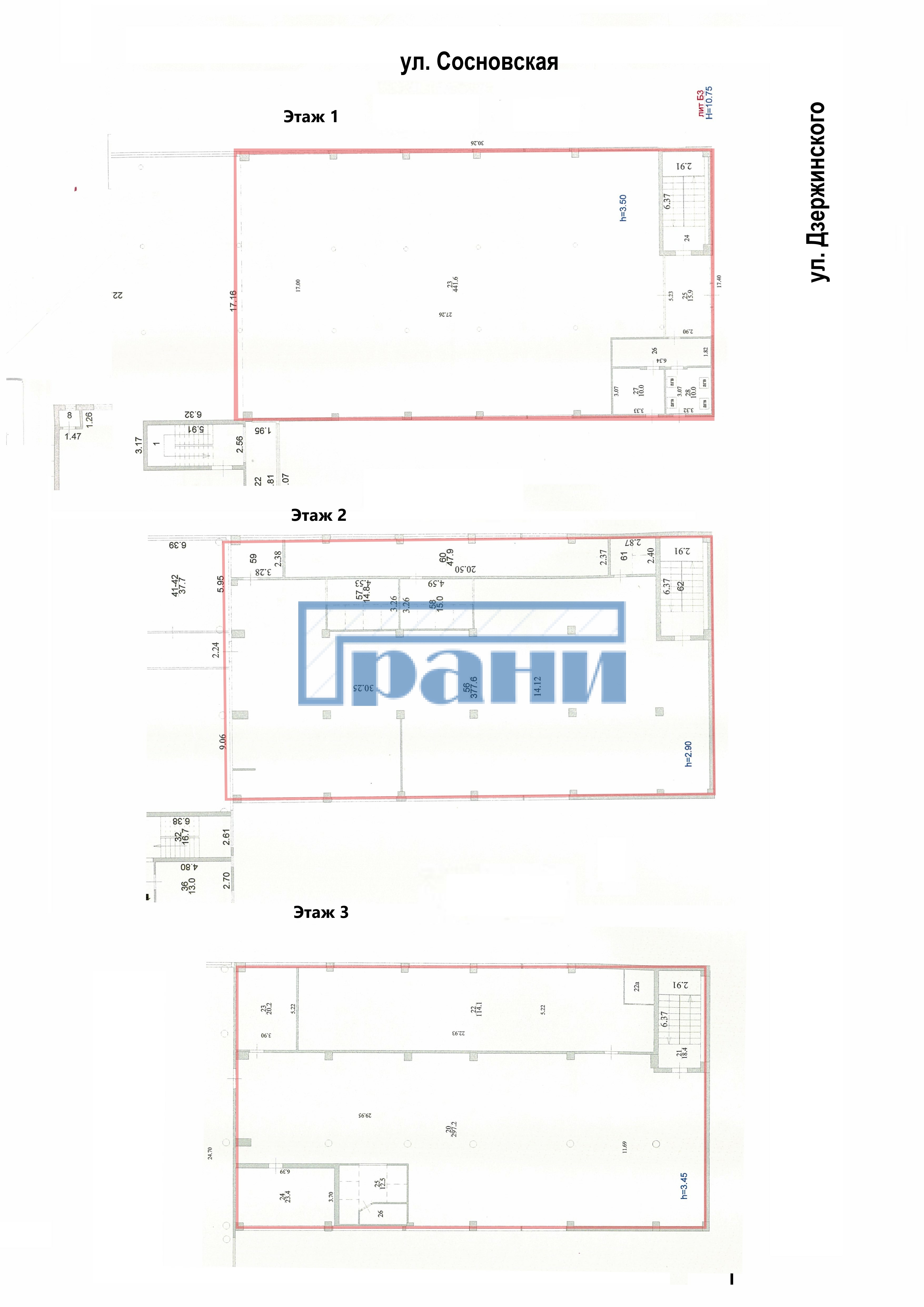
Продается помещение свободного назначения в ТЦ, площадью 1433,7 кв.м по адресу: г. Курск, ул. Верхняя Луговая, д. 13а
ЛОКАЦИЯ:
ТЦ Надежда расположен в исторически сложившейся торговой зоне Курска-рядом с Центральным рынком;
Рядом расположены: Сбербанк, Россельхозбанк, МФЦ, Курский Цирк, здания Администрации области и города, Знаменский кафедральный собор;
Остановки общественного транспорта 200 м от входа в ТЦ;
Платные и бесплатные машино/места у Центрального Рынка и прилегающих улиц.
Характеристика помещения:
Помещение расположено на 3-х этажах ТЦ "Надежда;
Вход - большое крыльцо со стороны ул. Сосновская;
Земельный участок под зданием в собственности;
Кондиционеры потолочные сплит системы на каждом этаже;
Автономное газовое отопление, своя котельная;
Приточно-вытяжная вентиляция;
Погрузка/выгрузка через центральный вход;
Комнаты для хранения инвентаря;
Подсобные помещения:
Охранная и пожарная сигнализация.









































